










Paseo de las Delicias, Madrid
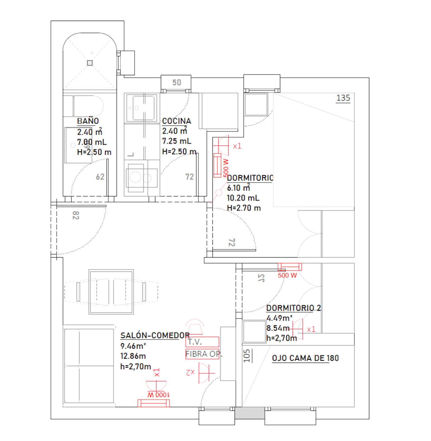
2 bedrooms
26m2
0 bathroom
4 people
This *cozy student apartment* features *two well-lit bedrooms* , each equipped with *single beds* , a *spacious wardrobe* , and a *window* that allows *natural light* to enter, creating a *comfortable and pleasant environment* for *studying and resting*.
The *living room* is the *heart of the apartment* , perfect for *relaxing* and *sharing moments*. It includes a *comfortable sofa* , a *dining table* , and a *television* , ideal for enjoying your *favorite series and movies*.
The *kitchen* is *fully equipped* to meet all your needs. It includes an *oven* , *microwave* , *ceramic hob* , and *refrigerator* , allowing you to *prepare and store* your meals efficiently.
The *bathroom* , *modern and functional* , is designed with a *shower tray* , offering a *practical* and *easy-to-maintain space*.
This apartment is the *ideal option* for *students* looking for a *comfortable* and *well-distributed space* to *live and study* in a *peaceful environment*.
The charming *neighborhood of* *Delicias* , located in the *Arganzuela* district of Madrid, is an ideal place for students seeking an enriching academic and cultural experience. Situated in a quiet yet well-connected area, this neighborhood offers a perfect balance between study and leisure.
*Delicias* , with its cozy streets and relaxed atmosphere, is surrounded by important avenues and points of interest, making it a strategic enclave for student life. This neighborhood hosts several renowned educational institutions, providing students with access to high-quality education. The proximity to the *Escuela Técnica Superior de Ingeniería y Diseño Industrial* , *INNADI* (Institute of Innovation in Design), and the *Clínica Odontológica de la Universidad Europea de Madrid* offers young people the opportunity to train in top-tier academic environments.
The metro stops *Arganzuela-Planetario* (line 6) and *Delicias* (line 3) greatly facilitate transportation, quickly connecting students to other areas of the city and their respective universities. This efficient transport network allows for quick and easy access to the *Universidad Complutense de Madrid* and the *Universidad Politécnica de Madrid* , among others.
In *Delicias* , students can enjoy a varied cultural and leisure offering. The neighborhood is filled with *cafés* , *restaurants* , and *shops* that create a cozy atmosphere for studying and relaxing. Additionally, places like the *Parque Enrique Tierno Galván* and the *Planetario de Madrid* offer unique spaces for recreation and inspiration.
The *nightlife* in *Delicias* , though quieter than in other parts of Madrid, offers enough options for students to relax and socialize after a day of studies. *Bars* and live music venues provide a perfect environment to unwind and enjoy the company of friends.
Rental conditions:
- Free Check-in time: 9:00h - 18:00h from Monday to Friday.
- We offer to pick up service from the airport with a cost of 65€+VAT
- The utility costs are as described in the listing. Nevertheless, if the usage of utilities exceeds the amount that the fixed price for utilities covers, it might be that extra costs will have to be paid.
Please, be aware that HousingAnywhere is an online booking platform. Therefore exchanging contact details and offering viewings is not possible. If you would like to reserve this accommodation, send me a booking request or a message and I will get back to you as soon as possible.
Amenities
Desk
Television
Washing Machine
Rules
Pets not allowed
Smoking not allowed
Events not allowed
Not suitable for families with children
Children not allowed
Infants not allowed
Cancellation Policy
You can cancel the reservation for free within 30 days before moving.
Frequently asked questions for this offer
What happens after I make a reservation?
Once you send a reservation request, the landlord is notified that you are interested in their offer. From that moment, they have 24 hours to approve or reject your reservation.
Landlords are mainly interested in the profile of their tenant. Do not forget to fill in all necessary information, add your profile picture, or even make a short video about yourself. Doing that will make you more attractive for the owner and your reservation will more likely get approved.
What is the standard furnishing of flats?
All the apartments on offer on HousingAnywhere must meet certain standards. We require fully furnished and equipped ones, dishes, cutlery and internet connection included.
What is a medium-term rent?
The duration of a medium-term rent is usually 1 to 12 months. Most of the landlords offer long-term rents or rents for just a few days, therefore getting a medium-term rent without HousingAnywhere is not that easy.
Can I go through the contract before I make a reservation of the housing?
You can take a look at the contract in advance and online with every offer. After you sign it, you will find it in the application My Housing.
While arranging a contract on HousingAnywhere, you do not have to worry that it could be disadvantageous for you. Our contracts are made so that we avoid all problems! All of them are the same, used by all the landlords on HousingAnywhere.
Can I see my chosen accommodation in person before I sign the lease agreement?
Your time is precious. That's why we've added a virtual tour option to our platform so you can see some of the rentals listed on HousingAnywhere from the comfort of your own home.
If a virtual tour isn't available for the accommodation you've chosen, you can contact the landlord and ask them if they're willing to give you a personal tour of the rental unit.
If you move in and find that the rented accommodation doesn't match the information on HousingAnywhere at the time the reservation request was sent to the landlord, you can withdraw from the lease agreement under certain circumstances explained in this article in our help center.
Also, under our "secure move-in" policy, we'll assist you with moving to an alternative accommodation if you report within a certain period of time that the rental unit doesn't match the ad and the landlord doesn't fix the problem immediately. You can read the details in our help center.
How can I pay?
On HousingAnywhere, you have a variety of payment methods to choose from. You can use your card, payment gateway or bank transfer. Just pick the one which suits you the most.
How can I cancel my reservation?
How you can cancel a reservation varies depending on what stage the reservation is in.
Is your reservation request still waiting for landlord approval? Then you can simply cancel it directly from your My Housing web app!
However, suppose the owner has already approved your reservation request, and you are no longer interested in it. In that case, you can still cancel the reservation before you sign the lease agreement. Just consider that you should do this only in essential cases. Because when the landlord accepts your reservation, their property is stopped being advertised, and they can lose the chance to rent their property to someone else.
Do you have an approved reservation and also a valid agreement? In order to cancel your reservation, contact HousingAnywhere customer support well in advance of your contract beginning (the specific time and amount of refund depends on the type of cancelation policy).