






Appelmansstraat, Antwerpen
0 bedrooms
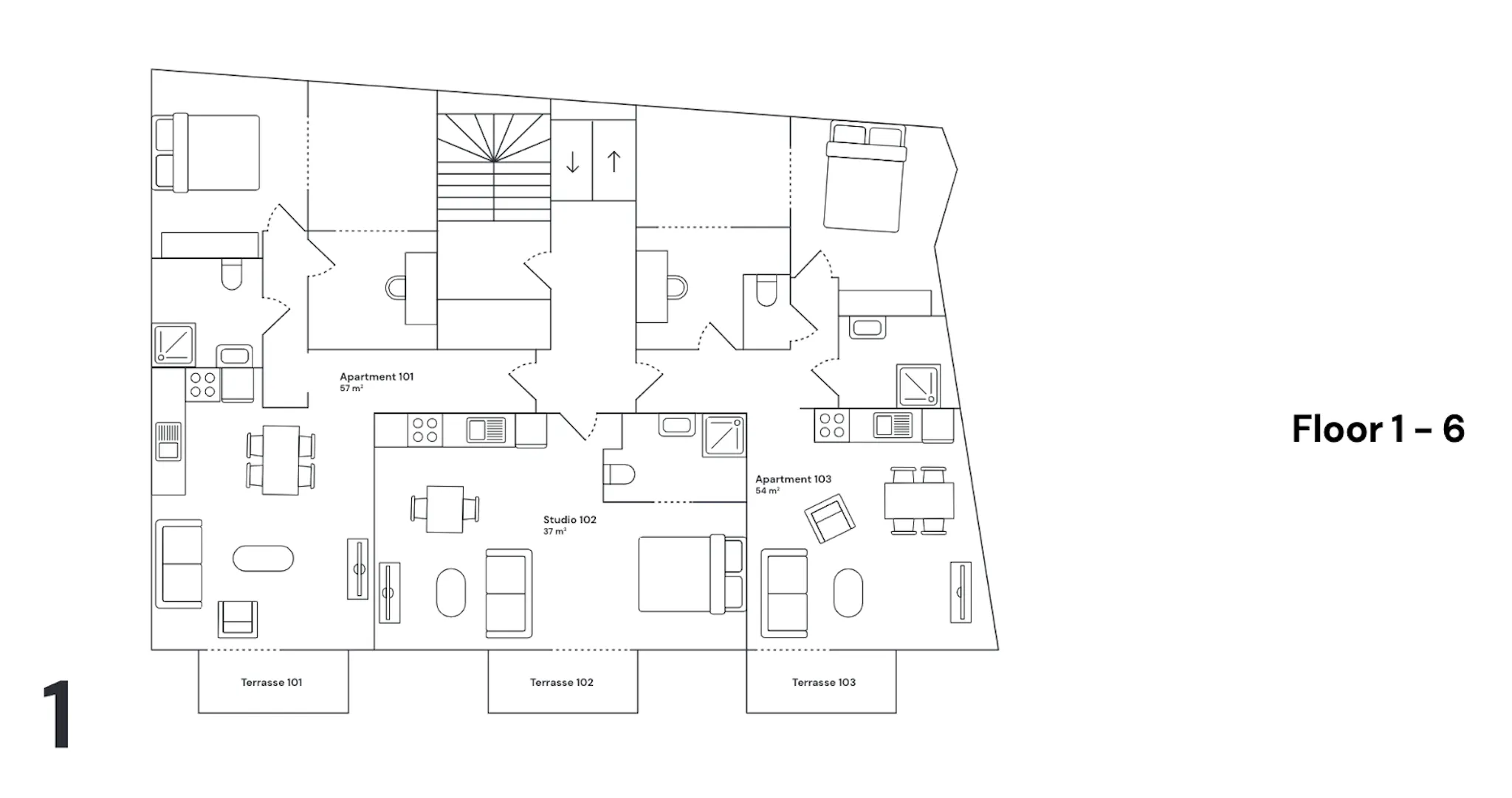
37m2
0 bathroom
4 people
Discover this high-end furnished studio ideally situated near Antwerp Central Station, offering a perfect blend of comfort, convenience, and modern living. Spanning 37 square meters, this bright and stylish apartment features a well-designed living area with a comfortable double bed (160x200), a cozy seating space, and a terrace where you can unwind while enjoying fresh air and natural light.
The fully equipped kitchen includes everything you need for daily living, such as ceramic cooking plates, an oven, hood, dishwasher, washing machine, kettle, and complete dishware—ready for immediate use from day one. The spacious bathroom is fitted with modern fixtures, ensuring your comfort and convenience.
This studio boasts a neat decor with thoughtful touches throughout, including a TV, high-speed internet, curtains/blinds for privacy, and ample storage options like a wardrobe and wall shelves. Essential amenities such as a coffee machine, microwave, and various kitchenware make living effortless in this carefully curated space.
Located in a thriving neighborhood, you'll enjoy easy access to supermarkets (just 4 minutes on foot), a variety of restaurants and bars (3 minutes), a gym (3 minutes), and a cinema (3 minutes). The historic center is only 13 minutes away by metro, with Antwerpen opera metro station (serving lines 3, 5, 9, 10, and 15) just 3 minutes on foot, providing quick connections across the city.
Residents also benefit from building amenities such as a kitchen area, social lounge, bicycle parking, and a gym. Whether for study, work, or leisure, this studio offers an exceptional living experience in the heart of Antwerp, combining convenience with sophistication.
Amenities
Desk
Dish washer
Dryer
Television
Washing Machine
Rules
Pets not allowed
Smoking not allowed
Events not allowed
Not suitable for families with children
Children not allowed
Infants not allowed
Cancellation Policy
You can cancel the reservation for free within 30 days before moving.
Frequently asked questions for this offer
What happens after I make a reservation?
Once you send a reservation request, the landlord is notified that you are interested in their offer. From that moment, they have 24 hours to approve or reject your reservation.
Landlords are mainly interested in the profile of their tenant. Do not forget to fill in all necessary information, add your profile picture, or even make a short video about yourself. Doing that will make you more attractive for the owner and your reservation will more likely get approved.
What is the standard furnishing of flats?
All the apartments on offer on HousingAnywhere must meet certain standards. We require fully furnished and equipped ones, dishes, cutlery and internet connection included.
What is a medium-term rent?
The duration of a medium-term rent is usually 1 to 12 months. Most of the landlords offer long-term rents or rents for just a few days, therefore getting a medium-term rent without HousingAnywhere is not that easy.
Can I go through the contract before I make a reservation of the housing?
You can take a look at the contract in advance and online with every offer. After you sign it, you will find it in the application My Housing.
While arranging a contract on HousingAnywhere, you do not have to worry that it could be disadvantageous for you. Our contracts are made so that we avoid all problems! All of them are the same, used by all the landlords on HousingAnywhere.
Can I see my chosen accommodation in person before I sign the lease agreement?
Your time is precious. That's why we've added a virtual tour option to our platform so you can see some of the rentals listed on HousingAnywhere from the comfort of your own home.
If a virtual tour isn't available for the accommodation you've chosen, you can contact the landlord and ask them if they're willing to give you a personal tour of the rental unit.
If you move in and find that the rented accommodation doesn't match the information on HousingAnywhere at the time the reservation request was sent to the landlord, you can withdraw from the lease agreement under certain circumstances explained in this article in our help center.
Also, under our "secure move-in" policy, we'll assist you with moving to an alternative accommodation if you report within a certain period of time that the rental unit doesn't match the ad and the landlord doesn't fix the problem immediately. You can read the details in our help center.
How can I pay?
On HousingAnywhere, you have a variety of payment methods to choose from. You can use your card, payment gateway or bank transfer. Just pick the one which suits you the most.
How can I cancel my reservation?
How you can cancel a reservation varies depending on what stage the reservation is in.
Is your reservation request still waiting for landlord approval? Then you can simply cancel it directly from your My Housing web app!
However, suppose the owner has already approved your reservation request, and you are no longer interested in it. In that case, you can still cancel the reservation before you sign the lease agreement. Just consider that you should do this only in essential cases. Because when the landlord accepts your reservation, their property is stopped being advertised, and they can lose the chance to rent their property to someone else.
Do you have an approved reservation and also a valid agreement? In order to cancel your reservation, contact HousingAnywhere customer support well in advance of your contract beginning (the specific time and amount of refund depends on the type of cancelation policy).